architekt prix
Staatlich befugter und beeideter Ziviltechniker
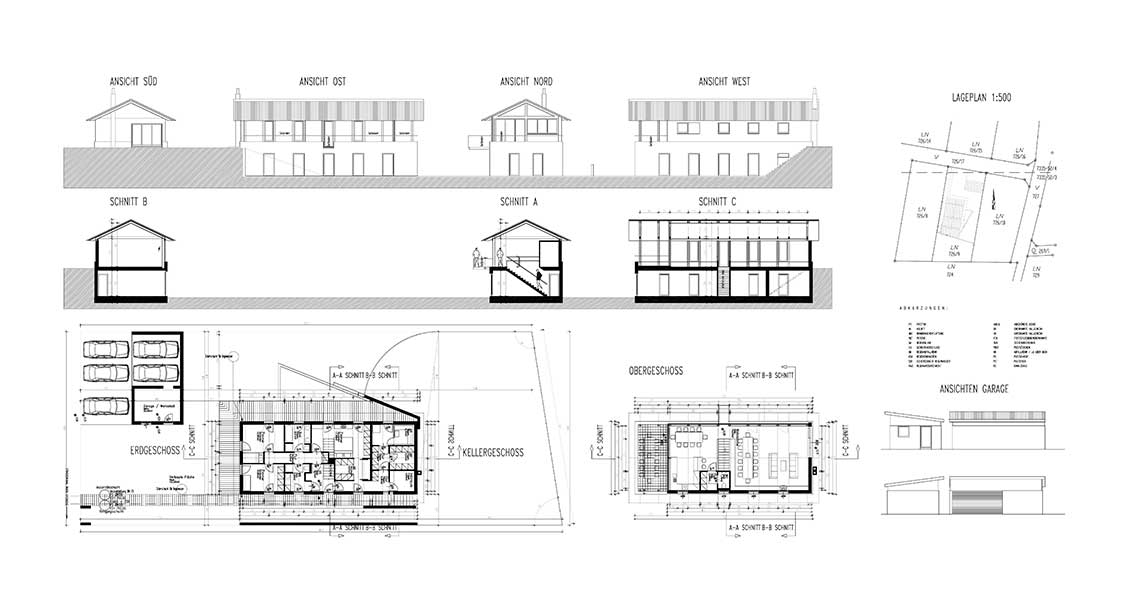
Einfamilienhaus Tre
Kontakt
Plus
Projekte
Fotos
Pläne