architekt prix
Staatlich befugter und beeideter Ziviltechniker
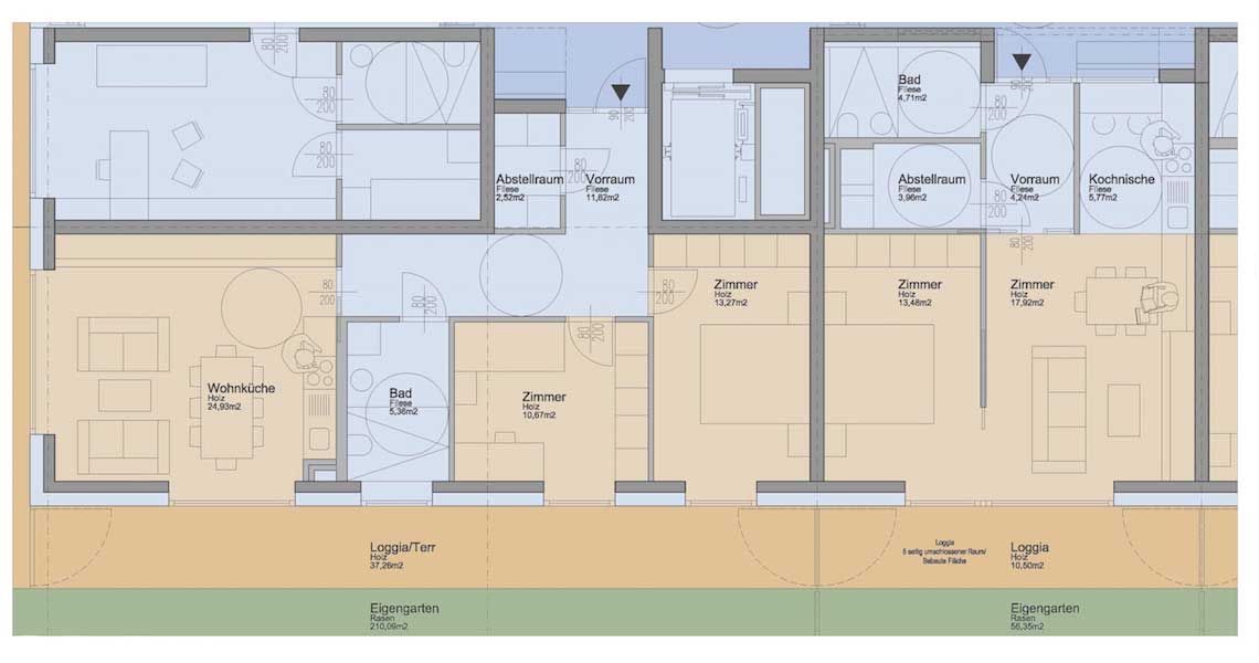
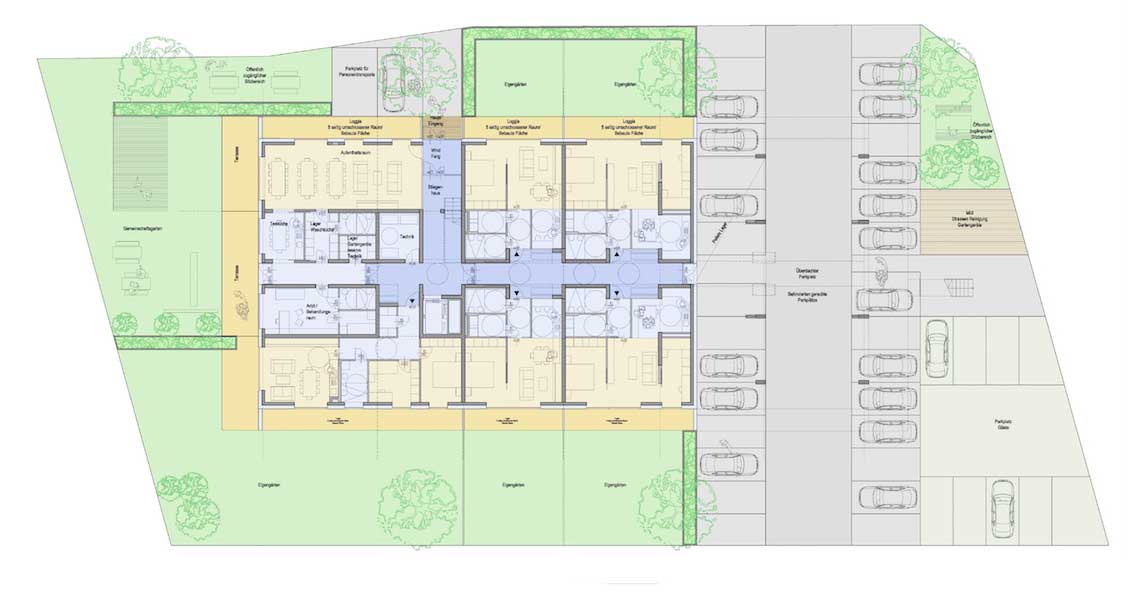
WHA Betreutes Wohnen Gänserndorf Wettbewerb
Kontakt
Plus
Projekte
Fotos
Pläne